Partie 1- Lignes directrices pour des descriptions légales acceptables pour les servitudes (statutaires et autres)

Vous avez d’autres questions? Envoyer une demande

Une description légale enregistrable est une description simple et concise qui ne nécessite pas de formation particulière pour être comprise.  Dans tous les cas, la description doit être formulée sans ambiguïté en s’appuyant sur le tissu cadastral existant (limites du plan ou du SGD) comme référence pour délimiter la servitude, ou en précisant qu’elle est parallèle et adjacente à ce tissu cadastral pertinent, avec des dimensions perpendiculaires ou concentriques.

 

 

Les pages suivantes contiennent des illustrations et des exemples de descriptions légales acceptables, accompagnés d’explications lorsque cela est nécessaire.

Quelques règles générales, comme suit :

  • Toute servitude délimitée par une limite naturelle nécessitera un plan d’arpentage.
     
  • L’utilisation des directions cardinales (Nord, Est, Sud, Ouest) doit être sans ambiguïté. Dans le cadre de ces lignes directrices, seules les limites s’alignant à 10 degrés près sur leur orientation réelle, comme indiquée sur le diagramme du canton ou le plan établissant la parcelle, seront considérées.
     
  • L’utilisation des directions ordinales (Nord-Est, Sud-Est, Sud-Ouest, Nord-Ouest) doit être sans ambiguïté. Aux fins de l’établissement de cette ligne directrice, celle-ci sera limitée aux limites qui s’alignent à moins de 10 degrés de leur orientation réelle telle que référencée soit sur le schéma du canton, soit sur le plan qui établit la parcelle. La référence aux directions ordinales sera en outre limitée à un maximum de figures à 4 côtés.
     
  • Lorsqu’une description légale utilise des directions cardinales ou ordinales pour référencer les limites d’une parcelle ou d’une servitude, une seule limite peut être désignée de cette manière.  Par exemple : Si l’on utilise « LA PERPENDICULAIRE DE X MÈTRES AU NORD », il ne peut y avoir qu’une seule limite nord.

 

Les pages suivantes contiennent des illustrations et des exemples de descriptions légales acceptables, accompagnés d’explications lorsque cela est nécessaire.

Si une description légale ne satisfait pas aux critères établis dans ces lignes directrices, un plan sera exigé.

 

___________

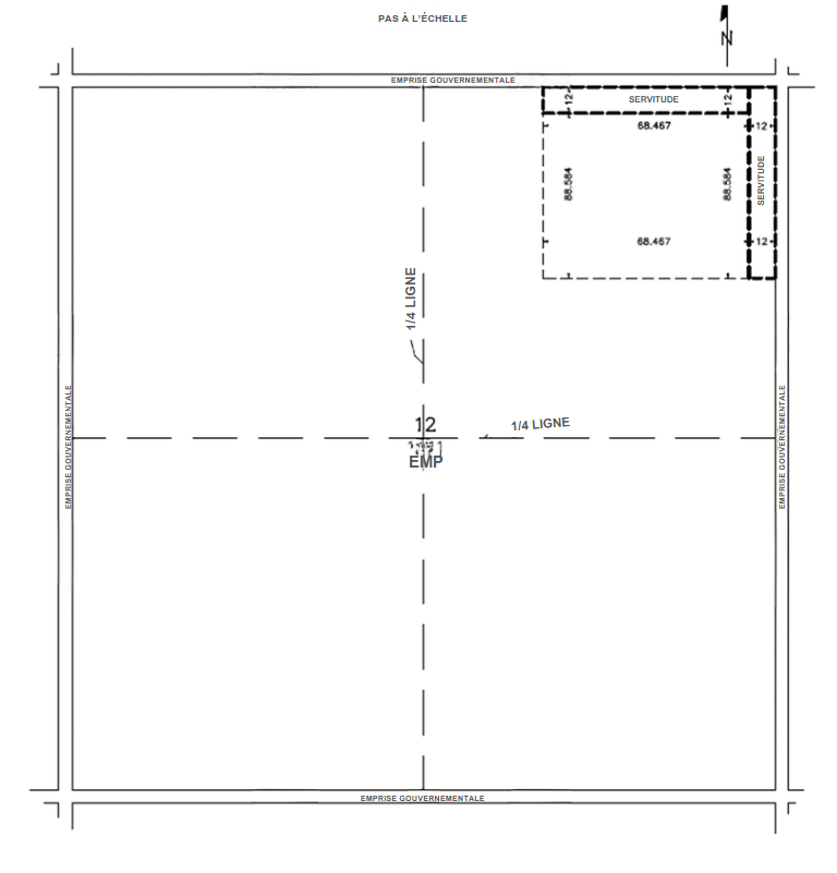
Exemple 1

Exemples de descriptions :

LA PERPENDICULAIRE EST DE 12,0 MÈTRES DE LA PERPENDICULAIRE NORD DE 100,584 MÈTRES DU QUART NORD-EST DE LA SECTION 12, CANTON 1, RANG 11, 
À L’EST DU MÉRIDIEN PRINCIPAL.

 

et

LA PERPENDICULAIRE NORD DE 12,0 MÈTRES DE LA PERPENDICULAIRE OUEST DE 68,467 MÈTRES DE LA PERPENDICULAIRE EST DE 80,467 MÈTRES DU QUART NORD-EST DE LA SECTION 12, CANTON 1, RANG 11, EST DU MÉRIDIEN PRINCIPAL.

 

____________

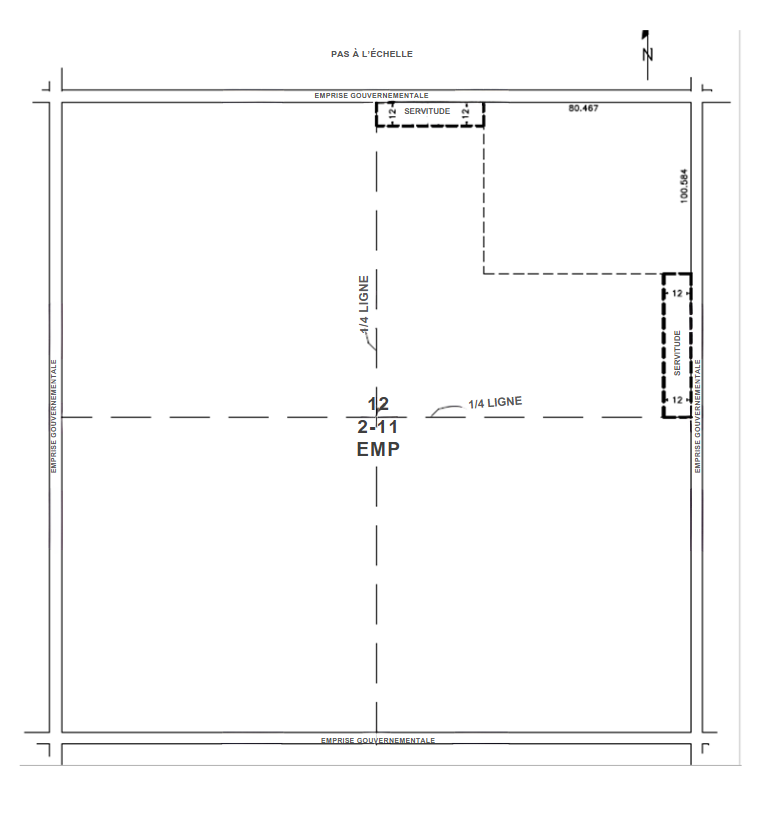
Exemple 2

Exemples de descriptions :

LES 12,0 MÈTRES PERPENDICULAIRES À L’EST DU QUART NORD-EST DE LA SECTION 12, CANTON 2, RANG 11, À L’EST DU MÉRIDIEN PRINCIPAL, À L’EXCEPTION DES 100,584 MÈTRES NORD.

 

et

 

LES 12,0 MÈTRES PERPENDICULAIRES AU NORD DU QUART NORD-EST DE LA SECTION 12, CANTON 2, RANG 12, À L’EST DU MÉRIDIEN PRINCIPAL, À L’EXCEPTION DES 80,467 MÈTRES VERS L’EST.

 

Remarque : si les exceptions sont des limites de titres, le libellé doit être identique aux titres. Par exemple, l’exception n’a pas utilisé « PERP » dans ce cas.

 

 

____________

Exemple 3

Exemple de description :

TOUTE LA PARTIE DU QUART NORD-OUEST DE LA SECTION 30, CANTON 1, RANG 12, 
À L’EST DU MÉRIDIEN PRINCIPAL, SITUÉE ENTRE LA LIMITE SUD DU CHEMIN PUBLIC PLAN 1400 WLTO ET UNE LIGNE TRACÉE AU SUD, PARALLÈLEMENT ET PERPENDICULAIREMENT À UNE DISTANCE DE 12 MÈTRES DE LADITE LIMITE SUD, À L’EXCEPTION DU PLAN 16398 WLTO.

 

 

_________

Exemple 4

Exemple de description :

TOUTE LA PARTIE DU QUART NORD-EST DE LA SECTION 35, CANTON 1, RANG 11, À L’EST DU MÉRIDIEN PRINCIPAL, SITUÉE ENTRE LA LIMITE SUD DE LA ROUTE PLAN 9210 WLTO ET UNE LIGNE TRACÉE AU SUD, PARALLÈLEMENT À LADITE LIMITE SUD ET PERPENDICULAIREMENT À CELLE-CI, À UNE DISTANCE DE 12,0 MÈTRES, QUI SE TROUVE À L’OUEST DE LA LIMITE OUEST DU LOT 1, PLAN 15622 WLTO

 

 

____________

Exemple 5

Exemple de description :

TOUTE LA PARTIE DU QUART FRACTIONNAIRE NORD-EST DE LA SECTION 16, CANTON 26, RANG 16, À L’OUEST DU MÉRIDIEN PRINCIPAL, SITUÉE ENTRE LA LIMITE NORD-EST DE LA PROMENADE CHRISTENSEN, PLAN N° 2834 DLTO, ET UNE LIGNE TRACÉE AU NORD-EST DE LADITE LIMITE NORD-EST, PARALLÈLEMENT À CELLE-CI ET À DISTANCE PERPENDICULAIRE, OU CONCENTRIQUEMENT À CELLE-CI ET À DISTANCE RADIALE, À 12,0 MÈTRES DE LADITE LIMITE NORD-EST.

 

 

____________

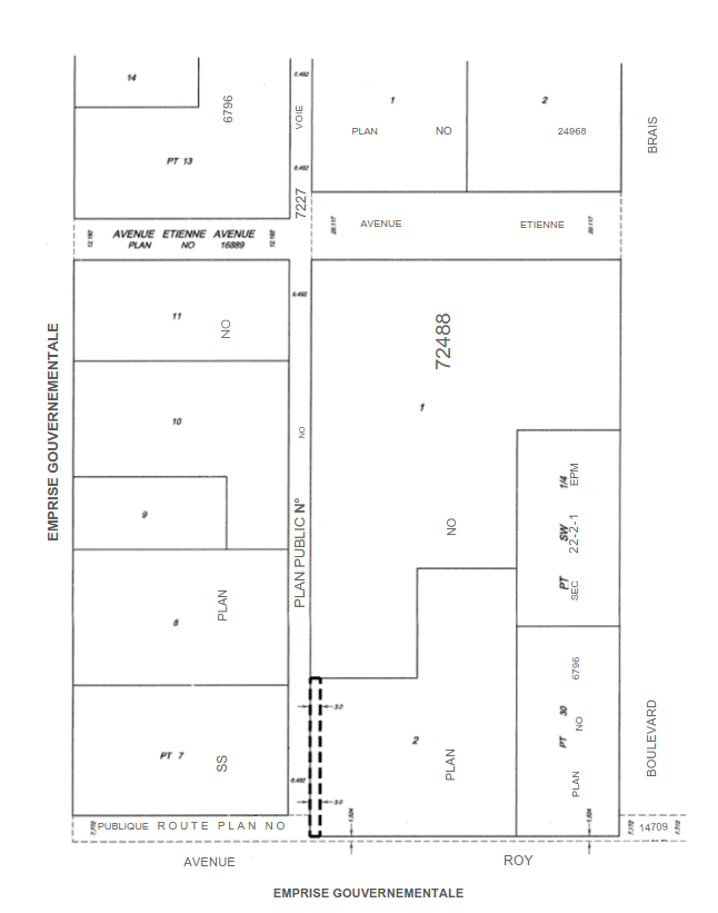
Exemple 6

Exemple de description :

TOUTE LA PARTIE DU LOT 2, PLAN 72488, SITUÉE ENTRE LA LIMITE EST DE PUBLIC LANE, PLAN 7227 WLTO, ET SES PRODUCTIONS RECTILIGNES, ET UNE LIGNE TRACÉE À L’EST, PARALLÈLEMENT ET PERPENDICULAIREMENT À 3 MÈTRES DE LADITE LIMITE EST ET DE SES PRODUCTIONS RECTILIGNES, DANS LE QUART SUD-OUEST DE LA SECTION 22, CANTON 2, RANG 1, À L’EST DU MÉRIDIEN PRINCIPAL.

 

Remarque : Étant donné qu’il existe plus d’une limite ouest du lot 2 du plan 72488, la référence à la parcelle adjacente, dans ce cas le plan de voie publique 7227, élimine toute ambiguïté.

 

 

____________

Exemple 7

Exemple de description :

TOUTE LA PARTIE DU LOT 3, PLAN 38537 WLTO, SITUÉE AU NORD DU PROLONGEMENT RECTILIGNE VERS L’OUEST DE LA LIMITE SUD DU LOT 2 DUDIT PLAN, DANS LE QUART 
SUD-OUEST DE LA SECTION 14, CANTON 10, RANG 19, À L’OUEST DU MÉRIDIEN PRINCIPAL.

 

Remarque : Étant donné qu’il y a plus d’une limite nord du lot 3 du plan 38537, la référence à la parcelle adjacente, dans ce cas le lot 2 du plan 38537, élimine toute ambiguïté.

 

 

_________

Exemple 8

Exemple de description :

TOUTE LA PARTIE DE LA PERPENDICULAIRE OUEST DE 12,0 MÈTRES DU QUART 
NORD-OUEST DE LA SECTION 35, CANTON 1, RANG 11, EST DU MÉRIDIEN PRINCIPAL, SITUÉE ENTRE DEUX LIGNES TIRÉES VERS L’EST À ANGLE DROIT DE LA LIMITE OUEST DUDIT QUART NORD-OUEST À PARTIR DE POINTS SITUÉS AU SUD DE CELLE-CI, À 100,0 MÈTRES ET 112,0 MÈTRES, RESPECTIVEMENT, DE L’ANGLE NORD-OUEST DUDIT QUART NORD-OUEST.

 

 

____________

Exemple 9

Exemple de description :

LA PERPENDICULAIRE SUD DE 12,0 MÈTRES DE LA PERPENDICULAIRE NORD DE 24,0 MÈTRES DU QUART NORD-EST DE LA SECTION 12, CANTON 2, RANG 11, 
À L’EST DU MÉRIDIEN PRINCIPAL.

 

Articles dans cette section

Cet article vous a-t-il été utile?
Utilisateurs qui ont trouvé cela utile : 0 sur 0